
Planung und Neubau einer Typen-Kindertagesstätte
Hannover
Vergabeverfahren / mit Teilnahmewettbewerb im Rahmen eines ÖPP-Modells
Planung und Neubau einer Typen-Kindertagesstätte mit Wiederholungsleistungen
In Zusammenarbeit mit ERNE AG Holzbau
Bearbeitung
Auftraggebende
Fläche
Leistungen
Kosten
2020
Landeshauptstadt Hannover
1.140 m² NRF
VgV Verfahren mit Lösungsskizze
4.1 Mio. Euro
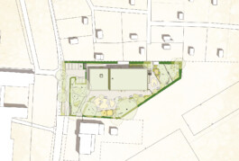
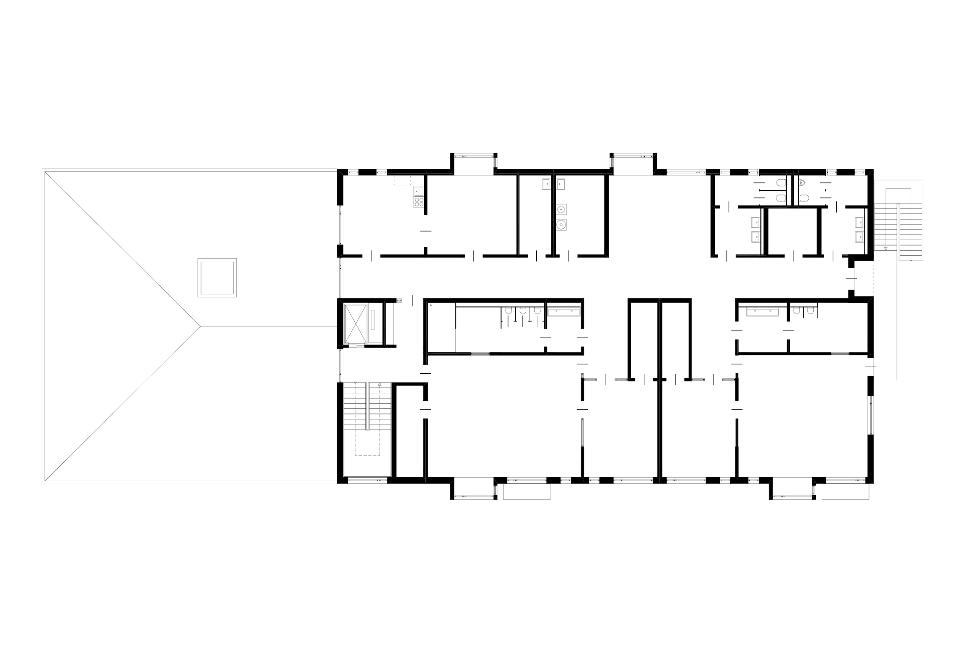
Grundriss: Den Auftakt der Kita bildet ein in die Fassade eigelassener, überdachter Haupteingang, der über einen Windfang in ein offenes Foyer führt. Die Kita-Leitung befindet sich in direkter Nähe zum Haupteingang. Der Foyer- und Treppenhausbereich ist bewusst großzügig gestaltet, um bei Stoßzeiten Engpässe zu vermeiden. Sofern gewünscht, kann hier eine Trennung von Straßen- und Hausschuhnutzung stattfinden. Im EG wird vom Foyer- und Treppenhausbereich aus dem offenen Bereich mit dem Mehrzweck- und Essraum und den Bereichen für die U3 Krippe mit einem einladenden offenen Spielflur erschlossen. Gleichzeitig gelangt man in den Spiel- und Außenbereich. Das Obergeschoss wird über eine zweiläufige Treppe oder barrierefrei über den Aufzug erreicht. Hier befinden sich die älteren Kinder und die die Sozialräume für die Erzieher*innen.
Der Grundriss ist klar und übersichtlich strukturiert und weist dabei größtmögliche Flexibilität für verschiedene pädagogische Konzepte auf. Alle Gruppen-und Kleingruppenräume des EG und OG 1 liegen an der, sich zum Garten öffnenden, Westseite. Jeder Gruppen-und Kleingruppenraum ist großzügig verglast und erhält als besonderen ´Ausguck´ ein Sitzfenster mit Blick ins Grüne. Die Gruppen-und Kleingruppenräume der U3 Krippe erhalten einen direkten Zugang zu den Spiel- und Außenbereichen. Hauptzugang und administrative Räume wie z.B. die Kita.-Leitung, der Personal Arbeitsraum, die Teeküche etc. sind zur ´morgendlichen.-Sonnenaufgangs-Ostseite´ angeordnet, gleichzeitig befinden sich hier die Nebenräume. Die breiten Erschließungsflure weisen mehrere Aufweitungen auf, so dass diese als zusätzliche Spielfläche genutzt werden können, durch die Ausbildung von Kompartments wird keine Freihaltung von Brandlasten erforderlich. Große Nischen, für den Essbereich der Krippe im EG und zusätzliche Spielfläche im OG1, schaffen Rückzugsorte für die Kinder und erzeugen somit eine räumliche Großzügigkeit. Die klare Grundrissstruktur, mit zahlreihen Blickbeziehungen zwischen Innen-und Außenbereichen, erleichtern die Orientierung von Kindern und Erzieher*innen. Gruppen- / Kleingruppenräume und die dazugehörigen Abstellräume sind paarweise nebeneinander über beide Geschosse angeordnet. Räumlich eingeschobene Garderobennischen leiten die Kinder in ihre jeweilige Gruppe und bilden zugleich ein ablesbares Volumen. Vorgelagerte Abstellräume vor den Kleingruppenräumen erleichtern das Aufbewahren von Spielgeräten und Matratzen. Um eine größtmögliche Nutzung für Spiel und Spaß der Kinder zu erreichen, ist der Multifunktionsraum mit dem Mehrzweckraum im EG über einen Spielflur räumlich verbunden. Beide Räume können mit einem Vorhang bei Bedarf voneinander getrennt werden. In direkter Nähe befindet sich auch der offene Essbereich. Küche und Essbereich sind durch eine Sichtverbindung miteinander verbunden. Eine vorgelagerte überdachte Terrasse ermöglicht den Kindern, nach dem Essen oder dem Spielen im Mehrzweckbereich, direkt in den Außenspielbereich gelangen. Gleichzeitig bietet die Terrasse einen beliebten Ort für Sommerfeste und als witterungsgeschützten Treffpunkt, außerdem kann der Essbereich in den warmen Frühlings- und Sommermonaten nach außen erweitert werden.
Fassadengestaltung: Wie der Name „Baukästchen“ bereits verrät, basiert der Entwurf der Kita auf einem dreidimensionalen Holzmodulbau, der vorgefertigt auf die Baustelle geliefert wird. Durch die Modularität sind die Ansichten, ebenso wie die Grundrisse, klar gegliedert. Der Eingangsbereich, sowie der Mehrzweckraum und der Essraum KiGa erhalten eine Stützenreihung, um die Besonderheit der dahinterliegenden Räume bzw. den Eingang optisch hervorzuheben. Die Fassade besteht aus einer Lücken-Bretterschalung, die durch unterschiedlich breite Fassadenbretter belebt wird und dem kubisch anmutenden Gebäude optische Leichtigkeit verleihen. Das Fassadenmaterial Holz ist für einen Kindergarten ideal geeignet und klimabewusst eingesetzt. Durch die Fenster wird die Lochfassade proportional gegliedert Fenster, hinter denen sich Nebenräume befinden sind teilweise mit einen Holzrelief versehen, um ein harmonisches Fassadenbild entstehen zu lassen. Die niedrige Brüstungshöhe ermöglicht den Kindern unterschiedlichen Alters einen guten Ausblick auf den Außenspielbereich. Eine Besonderheit sind die Sitzfenster als Panoramafenster, die jedem Gruppenraum vorgelagert sind und zu Interaktion einladen. Die Panoramafenster erhalten eine Metallfassade in freundlich hellen goldenen Farbton, die dem Gebäude einen besonderen Wiedererkennungseffekt verleiht.













Planung und Neubau einer Typen-Kindertagesstätte
Hannover
Vergabeverfahren / mit Teilnahmewettbewerb im Rahmen eines ÖPP-Modells
Planung und Neubau einer Typen-Kindertagesstätte mit Wiederholungsleistungen
In Zusammenarbeit mit ERNE AG Holzbau
Bearbeitung
Auftraggebende
Fläche
Leistungen
Kosten
2020
Landeshauptstadt Hannover
1.140 m² NRF
VgV Verfahren mit Lösungsskizze
4.1 Mio. Euro
Grundriss: Den Auftakt der Kita bildet ein in die Fassade eigelassener, überdachter Haupteingang, der über einen Windfang in ein offenes Foyer führt. Die Kita-Leitung befindet sich in direkter Nähe zum Haupteingang. Der Foyer- und Treppenhausbereich ist bewusst großzügig gestaltet, um bei Stoßzeiten Engpässe zu vermeiden. Sofern gewünscht, kann hier eine Trennung von Straßen- und Hausschuhnutzung stattfinden. Im EG wird vom Foyer- und Treppenhausbereich aus dem offenen Bereich mit dem Mehrzweck- und Essraum und den Bereichen für die U3 Krippe mit einem einladenden offenen Spielflur erschlossen. Gleichzeitig gelangt man in den Spiel- und Außenbereich. Das Obergeschoss wird über eine zweiläufige Treppe oder barrierefrei über den Aufzug erreicht. Hier befinden sich die älteren Kinder und die die Sozialräume für die Erzieher*innen.
Der Grundriss ist klar und übersichtlich strukturiert und weist dabei größtmögliche Flexibilität für verschiedene pädagogische Konzepte auf. Alle Gruppen-und Kleingruppenräume des EG und OG 1 liegen an der, sich zum Garten öffnenden, Westseite. Jeder Gruppen-und Kleingruppenraum ist großzügig verglast und erhält als besonderen ´Ausguck´ ein Sitzfenster mit Blick ins Grüne. Die Gruppen-und Kleingruppenräume der U3 Krippe erhalten einen direkten Zugang zu den Spiel- und Außenbereichen. Hauptzugang und administrative Räume wie z.B. die Kita.-Leitung, der Personal Arbeitsraum, die Teeküche etc. sind zur ´morgendlichen.-Sonnenaufgangs-Ostseite´ angeordnet, gleichzeitig befinden sich hier die Nebenräume. Die breiten Erschließungsflure weisen mehrere Aufweitungen auf, so dass diese als zusätzliche Spielfläche genutzt werden können, durch die Ausbildung von Kompartments wird keine Freihaltung von Brandlasten erforderlich. Große Nischen, für den Essbereich der Krippe im EG und zusätzliche Spielfläche im OG1, schaffen Rückzugsorte für die Kinder und erzeugen somit eine räumliche Großzügigkeit. Die klare Grundrissstruktur, mit zahlreihen Blickbeziehungen zwischen Innen-und Außenbereichen, erleichtern die Orientierung von Kindern und Erzieher*innen. Gruppen- / Kleingruppenräume und die dazugehörigen Abstellräume sind paarweise nebeneinander über beide Geschosse angeordnet. Räumlich eingeschobene Garderobennischen leiten die Kinder in ihre jeweilige Gruppe und bilden zugleich ein ablesbares Volumen. Vorgelagerte Abstellräume vor den Kleingruppenräumen erleichtern das Aufbewahren von Spielgeräten und Matratzen. Um eine größtmögliche Nutzung für Spiel und Spaß der Kinder zu erreichen, ist der Multifunktionsraum mit dem Mehrzweckraum im EG über einen Spielflur räumlich verbunden. Beide Räume können mit einem Vorhang bei Bedarf voneinander getrennt werden. In direkter Nähe befindet sich auch der offene Essbereich. Küche und Essbereich sind durch eine Sichtverbindung miteinander verbunden. Eine vorgelagerte überdachte Terrasse ermöglicht den Kindern, nach dem Essen oder dem Spielen im Mehrzweckbereich, direkt in den Außenspielbereich gelangen. Gleichzeitig bietet die Terrasse einen beliebten Ort für Sommerfeste und als witterungsgeschützten Treffpunkt, außerdem kann der Essbereich in den warmen Frühlings- und Sommermonaten nach außen erweitert werden.
Fassadengestaltung: Wie der Name „Baukästchen“ bereits verrät, basiert der Entwurf der Kita auf einem dreidimensionalen Holzmodulbau, der vorgefertigt auf die Baustelle geliefert wird. Durch die Modularität sind die Ansichten, ebenso wie die Grundrisse, klar gegliedert. Der Eingangsbereich, sowie der Mehrzweckraum und der Essraum KiGa erhalten eine Stützenreihung, um die Besonderheit der dahinterliegenden Räume bzw. den Eingang optisch hervorzuheben. Die Fassade besteht aus einer Lücken-Bretterschalung, die durch unterschiedlich breite Fassadenbretter belebt wird und dem kubisch anmutenden Gebäude optische Leichtigkeit verleihen. Das Fassadenmaterial Holz ist für einen Kindergarten ideal geeignet und klimabewusst eingesetzt. Durch die Fenster wird die Lochfassade proportional gegliedert Fenster, hinter denen sich Nebenräume befinden sind teilweise mit einen Holzrelief versehen, um ein harmonisches Fassadenbild entstehen zu lassen. Die niedrige Brüstungshöhe ermöglicht den Kindern unterschiedlichen Alters einen guten Ausblick auf den Außenspielbereich. Eine Besonderheit sind die Sitzfenster als Panoramafenster, die jedem Gruppenraum vorgelagert sind und zu Interaktion einladen. Die Panoramafenster erhalten eine Metallfassade in freundlich hellen goldenen Farbton, die dem Gebäude einen besonderen Wiedererkennungseffekt verleiht.












tun-architektur
Jessenstraße 4
22767 Hamburg
040 - 257 67 11 - 0
info@tun-architektur.de
tun-architektur
Jessenstraße 4
22767 Hamburg
040 - 257 67 11 - 0
info@tun-architektur.de
3. Rang Wettbewerb, 2018

Mensa Ernst-Barlach-Gymnasium
Auszeichnungen
1. Rang Wettbewerb, 2022
Stadtteiltreff und Grünzug in Glückstadt Nord
1. Rang Wettbewerb, 2021
Klimaneutrale Sport-Kita Adendorf
BDA Hamburg Architektur Preis (Würdigung), 2020
Caféteria Turmweg
3. Rang Wettbewerb, 2019
Stellingen Sportplatzring
2. Rang Wettbewerb, 2019
Jenfelder Au - Wohnen am Kaskadenpark

3. Rang Wettbewerb, 2018
Mensa Ernst-Barlach-Gymnasium
BDA Hamburg Architektur Preis 2018
Kiwittsmoor-Park
3. Rang Wettbewerb, 2018
Jenfelder Au
1. Rang Wettbewerb, 2018
Einkaufen und Wohnen
am Butterberg
WohnbauPreis Hamburg 2017
Kiwittsmoor-Park
1. Rang Wettbewerb, 2016
Caféteria Turmweg
1. Rang Wettbewerb, 2007
Freischwimmer
tun-architektur ist umgezogen!
Sie finden uns unter der neuen Adresse:
Jessenstraße 4, 22767 Hamburg
Die neuen Räume teilen wir uns als Bürogemeinschaft mit PlanWerk° Architektur & Energieberatung.
