
Neukonzeption der Strandimmobilien
Nordseeinsel Spiekeroog
Neukonzeption der Strandhalle und
eines Appartementgebäudes auf Spiekeroog
Bearbeitung
Auftraggebende
Fläche
Leistungen
2021
Nordseebad Spiekeroog GmbH
Strandhalle 1.400 m² NRF
Appartementgebäude 1.040 m² NRF
hochbaulicher Realisierungswettbewerb
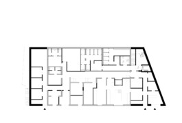
Die größte Herausforderung des Wettbewerbes „Strandimmobilien Spiekeroog“ besteht darin, in die naturräumlich hochsensible Dünenlandschaft ein behutsam abgeleitetes, aber gleichwohl identitätsstiftendes Gebäudeensemble zu implementieren. Dieses Ziel wird durch die geplanten Neubauten und Ergänzungen im Bestand erreicht. Unter Beachtung der Baufelder und der Höhen- und Flächengrenzwerte wurden die Gebäude „Strandhalle“ und „Apartmenthaus“ sensibel in die umgebende Landschaft und die vorgefundene Wege- und Gebäudestruktur eingepasst. Es entsteht der eigenständige, zum Ort passende und projektangemessene architektonische Ausdruck einer besonderen, spiekeroogischen Strand- und Dünenarchitektur, der die Gebäude als Teil des Naturraumes interpretiert. Diese Wirkung wird durch ein Gebäudeensemble aus charakteristischen Langhäusern mit Dachformen, deren Fassaden und Dächer aus dem natürlichen Material Holz bestehen, erzeugt. Wobei das Apartmenthaus ein einfaches Satteldach erhält und sich damit in der Formsprache der weiteren verbleibenden Gebäude (Strandkorbhalle und Sanitärgebäude) bewegt. Die Strandhalle, die aufgrund ihrer lagebedingten Alleinstellung auch Aushängeschild für Identität und Selbstverständnis der Insel ist, erhält eine besondere Dachform. Zur Westseite, dem Apartmentgebäude zugewandt, sich noch als Satteldach darstellend, verschiebt sich die Firstlinie, zur südöstlichen Gebäudekante und steigt dabei noch weiter an. Das Dach wirkt wie durch den starken Westwind geformt, ein architektonisches Zitat an Segel und Schiffsbuge. Durch diese besondere Kubatur entwickelt die Strandhalle eine eindeutige, architektonisch überzeugende Adressierung zum Slurpad und entfaltet zum Strand hin aber, wie gefordert, keine Präsenz, um den ursprünglichen Charakter des Hauptstrandes zu erhalten.
Strandhalle:
Der Neubau ermöglicht die Umsetzung eines ambitionierten Gastronomieangebotes zur Beherbergung eines differenzierten Gastronomiekonzepts unter Erhalt des Sockelgeschosses der „Strandhalle“. Unter Zugrundelegung des Raumfunktionsprogrammes entsteht ein hochwertiges Angebot in einem besonderen Ambiente, da sich die Kubatur des Gebäudes auch in den Grundrissen widerspiegelt. Die vertikale Gebäudeerschließung erfolgt über das Haupttreppenhaus, eine unabhängige Benutzung der gastronomischen Bereiche ist gewährleistet. Alle Geschosse und Bereiche sind barrierefrei erreichbar. Ein zweiter baulicher Rettungsweg ist in allen Geschossen vorhanden. Über die dazugehörigen Außengastronomieflächen im Norden erreicht man den SB-Bereich im EG. Durch den Gebäudeeinschnitt ist dieser gut markiert und einladend gestaltet. Der Gastbereich ist in zwei verschiedene Bereiche zoniert, um sowohl Familien mit Kindern als auch ruhebedürftigeren Personen ein attraktives Sitzplatzangebot zu ermöglichen. Diese Flächen lassen sich gut für Veranstaltungen unterschiedlicher Personenanzahl separieren. Die Strandkorbvermietung ist unabhängig von der Gastronomie bzw. deren Öffnungszeiten zugänglich und befindet sich zentral und gut auffindbar am Haupteingang. Das Bistro im Obergeschoss weist ein deutlich ruhigeres und etwas gehobeneres Ambiente auf. Wie auch der Gastbereich im EG ist der Gastraum gleichwertig, sowohl nach Norden zu den Außengastronomieflächen wie auch nach Süden zur Sonnenseite hin orientiert. Ein differenziert zonierter, tagsüber von natürlichem Licht durchfluteter Raum, bietet einen ganzjährig attraktiven Anlaufpunkt. Die angenehme gedimmte Lichtatmosphäre bietet in der Dämmerung und den Abendstunden einen bezaubernden Blick auf den Sternenhimmel. Durch den Einsatz von sichtbarem Holz auch in den Innenwand-, Decken- und Bodenflächen entsteht eine einheitliche Wirkung des Innenraumes der Gastronomie, dessen Ausstrahlung freundlich, zeitlos und durch den Materialeinsatz eindeutig ökologisch ist.
Apartmentgebäude:
Durch den Neubau entsteht ein attraktives, aber flächen- und kosteneffizientes Wohngebäude für Saisonarbeitskräfte und die Strandwache. Die Apartments der DLRG sind dabei in einem Maisonette-Cluster mit eigenem Aufenthaltsraum und Küche - wie in einer großen WG - untergebracht. Die beiden Dauerwohnungen für gastronomische Führungskräfte sind in Richtung Süden und abgewandt von der Gemeinschaftsterrasse angeordnet. Die Freisitze sind auch im EG als eingeschobene Loggia vorgesehen und haben somit keinen Austritt in die geschützten Dünenzonen. Lediglich die beiden Gemeinschaftsräume im EG erhalten Terrassen nach Norden hin und können sich somit in die dort sowieso befindliche Platzfläche ausbreiten, was für gemeinsame Abende und kleine Veranstaltungen attraktiv ist. Die geordnete Abstellung von Fahrrädern wird teilweise vor dem Gebäude angeboten. Alle restlichen Stellplätze befinden sich in der „Windschutzwand“ der Außengastronomie der Strandhalle.

























Neukonzeption der Strandimmobilien
Nordseeinsel Spiekeroog
Neukonzeption der Strandhalle und
eines Appartementgebäudes auf Spiekeroog
Bearbeitung
Auftraggebende
Fläche
Leistungen
2021
Nordseebad Spiekeroog GmbH
Strandhalle 1.400 m² NRF
Appartementgebäude 1.040 m² NRF
hochbaulicher Realisierungswettbewerb
Die größte Herausforderung des Wettbewerbes „Strandimmobilien Spiekeroog“ besteht darin, in die naturräumlich hochsensible Dünenlandschaft ein behutsam abgeleitetes, aber gleichwohl identitätsstiftendes Gebäudeensemble zu implementieren. Dieses Ziel wird durch die geplanten Neubauten und Ergänzungen im Bestand erreicht. Unter Beachtung der Baufelder und der Höhen- und Flächengrenzwerte wurden die Gebäude „Strandhalle“ und „Apartmenthaus“ sensibel in die umgebende Landschaft und die vorgefundene Wege- und Gebäudestruktur eingepasst. Es entsteht der eigenständige, zum Ort passende und projektangemessene architektonische Ausdruck einer besonderen, spiekeroogischen Strand- und Dünenarchitektur, der die Gebäude als Teil des Naturraumes interpretiert. Diese Wirkung wird durch ein Gebäudeensemble aus charakteristischen Langhäusern mit Dachformen, deren Fassaden und Dächer aus dem natürlichen Material Holz bestehen, erzeugt. Wobei das Apartmenthaus ein einfaches Satteldach erhält und sich damit in der Formsprache der weiteren verbleibenden Gebäude (Strandkorbhalle und Sanitärgebäude) bewegt. Die Strandhalle, die aufgrund ihrer lagebedingten Alleinstellung auch Aushängeschild für Identität und Selbstverständnis der Insel ist, erhält eine besondere Dachform. Zur Westseite, dem Apartmentgebäude zugewandt, sich noch als Satteldach darstellend, verschiebt sich die Firstlinie, zur südöstlichen Gebäudekante und steigt dabei noch weiter an. Das Dach wirkt wie durch den starken Westwind geformt, ein architektonisches Zitat an Segel und Schiffsbuge. Durch diese besondere Kubatur entwickelt die Strandhalle eine eindeutige, architektonisch überzeugende Adressierung zum Slurpad und entfaltet zum Strand hin aber, wie gefordert, keine Präsenz, um den ursprünglichen Charakter des Hauptstrandes zu erhalten.
Strandhalle:
Der Neubau ermöglicht die Umsetzung eines ambitionierten Gastronomieangebotes zur Beherbergung eines differenzierten Gastronomiekonzepts unter Erhalt des Sockelgeschosses der „Strandhalle“. Unter Zugrundelegung des Raumfunktionsprogrammes entsteht ein hochwertiges Angebot in einem besonderen Ambiente, da sich die Kubatur des Gebäudes auch in den Grundrissen widerspiegelt. Die vertikale Gebäudeerschließung erfolgt über das Haupttreppenhaus, eine unabhängige Benutzung der gastronomischen Bereiche ist gewährleistet. Alle Geschosse und Bereiche sind barrierefrei erreichbar. Ein zweiter baulicher Rettungsweg ist in allen Geschossen vorhanden. Über die dazugehörigen Außengastronomieflächen im Norden erreicht man den SB-Bereich im EG. Durch den Gebäudeeinschnitt ist dieser gut markiert und einladend gestaltet. Der Gastbereich ist in zwei verschiedene Bereiche zoniert, um sowohl Familien mit Kindern als auch ruhebedürftigeren Personen ein attraktives Sitzplatzangebot zu ermöglichen. Diese Flächen lassen sich gut für Veranstaltungen unterschiedlicher Personenanzahl separieren. Die Strandkorbvermietung ist unabhängig von der Gastronomie bzw. deren Öffnungszeiten zugänglich und befindet sich zentral und gut auffindbar am Haupteingang. Das Bistro im Obergeschoss weist ein deutlich ruhigeres und etwas gehobeneres Ambiente auf. Wie auch der Gastbereich im EG ist der Gastraum gleichwertig, sowohl nach Norden zu den Außengastronomieflächen wie auch nach Süden zur Sonnenseite hin orientiert. Ein differenziert zonierter, tagsüber von natürlichem Licht durchfluteter Raum, bietet einen ganzjährig attraktiven Anlaufpunkt. Die angenehme gedimmte Lichtatmosphäre bietet in der Dämmerung und den Abendstunden einen bezaubernden Blick auf den Sternenhimmel. Durch den Einsatz von sichtbarem Holz auch in den Innenwand-, Decken- und Bodenflächen entsteht eine einheitliche Wirkung des Innenraumes der Gastronomie, dessen Ausstrahlung freundlich, zeitlos und durch den Materialeinsatz eindeutig ökologisch ist.
Apartmentgebäude:
Durch den Neubau entsteht ein attraktives, aber flächen- und kosteneffizientes Wohngebäude für Saisonarbeitskräfte und die Strandwache. Die Apartments der DLRG sind dabei in einem Maisonette-Cluster mit eigenem Aufenthaltsraum und Küche - wie in einer großen WG - untergebracht. Die beiden Dauerwohnungen für gastronomische Führungskräfte sind in Richtung Süden und abgewandt von der Gemeinschaftsterrasse angeordnet. Die Freisitze sind auch im EG als eingeschobene Loggia vorgesehen und haben somit keinen Austritt in die geschützten Dünenzonen. Lediglich die beiden Gemeinschaftsräume im EG erhalten Terrassen nach Norden hin und können sich somit in die dort sowieso befindliche Platzfläche ausbreiten, was für gemeinsame Abende und kleine Veranstaltungen attraktiv ist. Die geordnete Abstellung von Fahrrädern wird teilweise vor dem Gebäude angeboten. Alle restlichen Stellplätze befinden sich in der „Windschutzwand“ der Außengastronomie der Strandhalle.
























tun-architektur
Jessenstraße 4
22767 Hamburg
040 - 257 67 11 - 0
info@tun-architektur.de
tun-architektur
Jessenstraße 4
22767 Hamburg
040 - 257 67 11 - 0
info@tun-architektur.de
3. Rang Wettbewerb, 2018

Mensa Ernst-Barlach-Gymnasium
Auszeichnungen
1. Rang Wettbewerb, 2022
Stadtteiltreff und Grünzug in Glückstadt Nord
1. Rang Wettbewerb, 2021
Klimaneutrale Sport-Kita Adendorf
BDA Hamburg Architektur Preis (Würdigung), 2020
Caféteria Turmweg
3. Rang Wettbewerb, 2019
Stellingen Sportplatzring
2. Rang Wettbewerb, 2019
Jenfelder Au - Wohnen am Kaskadenpark

3. Rang Wettbewerb, 2018
Mensa Ernst-Barlach-Gymnasium
BDA Hamburg Architektur Preis 2018
Kiwittsmoor-Park
3. Rang Wettbewerb, 2018
Jenfelder Au
1. Rang Wettbewerb, 2018
Einkaufen und Wohnen
am Butterberg
WohnbauPreis Hamburg 2017
Kiwittsmoor-Park
1. Rang Wettbewerb, 2016
Caféteria Turmweg
1. Rang Wettbewerb, 2007
Freischwimmer
tun-architektur ist umgezogen!
Sie finden uns unter der neuen Adresse:
Jessenstraße 4, 22767 Hamburg
Die neuen Räume teilen wir uns als Bürogemeinschaft mit PlanWerk° Architektur & Energieberatung.
