
Stadtteilschule Lurup
Flurstraße 15, Hamburg
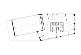
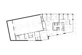
Neubau Klassenhaus mit 1-Feldsporthalle
Ausbau zur 3- Zügigkeit einer Stadtteilschule
1. Platz - VgV Verfahren
Bearbeitung
Auftraggebende
Leistungen
2025
Freie und Hansestadt Hamburg
SBH | Schulbau Hamburg
VgV-Verfahren













Stadtteilschule Lurup
Flurstraße 15, Hamburg
Neubau Klassenhaus mit 1-Feldsporthalle
Ausbau zur 3- Zügigkeit einer Stadtteilschule
1. Platz - VgV Verfahren
Bearbeitung
Auftraggebende
Leistungen
2025
Freie und Hansestadt Hamburg
SBH | Schulbau Hamburg
VgV-Verfahren












tun-architektur
Jessenstraße 4
22767 Hamburg
040 - 257 67 11 - 0
info@tun-architektur.de
tun-architektur
Jessenstraße 4
22767 Hamburg
040 - 257 67 11 - 0
info@tun-architektur.de
3. Rang Wettbewerb, 2018

Mensa Ernst-Barlach-Gymnasium
Auszeichnungen
1. Rang Wettbewerb, 2022
Stadtteiltreff und Grünzug in Glückstadt Nord
1. Rang Wettbewerb, 2021
Klimaneutrale Sport-Kita Adendorf
BDA Hamburg Architektur Preis (Würdigung), 2020
Caféteria Turmweg
3. Rang Wettbewerb, 2019
Stellingen Sportplatzring
2. Rang Wettbewerb, 2019
Jenfelder Au - Wohnen am Kaskadenpark

3. Rang Wettbewerb, 2018
Mensa Ernst-Barlach-Gymnasium
BDA Hamburg Architektur Preis 2018
Kiwittsmoor-Park
3. Rang Wettbewerb, 2018
Jenfelder Au
1. Rang Wettbewerb, 2018
Einkaufen und Wohnen
am Butterberg
WohnbauPreis Hamburg 2017
Kiwittsmoor-Park
1. Rang Wettbewerb, 2016
Caféteria Turmweg
1. Rang Wettbewerb, 2007
Freischwimmer
tun-architektur ist umgezogen!
Sie finden uns unter der neuen Adresse:
Jessenstraße 4, 22767 Hamburg
Die neuen Räume teilen wir uns als Bürogemeinschaft mit PlanWerk° Architektur & Energieberatung.
