
Schule und Kita Marschweg
Marschweg 10, Hamburg
Errichtung eines Zubaus mit Zweck Schule und Kita sowie Umbaumaßnahmen im Gebäude Nr. 01 und 03
1. Platz - VgV Verfahren
Fertigstellung
Auftraggebende
Fläche
Leistungen
vsl. 2028
Freie und Hansestadt Hamburg
SBH | Schulbau Hamburg
ca. 1. 580 m² BGF
LPH 1-8
Die Schule Marschweg liegt im Grünen, am nördlichen Rand des Hamburger Stadtteils Rissen. Mit Ausnahme des im Süden an den Schulstandort angrenzenden Hartwig-Hesse-Haus ist die Schule von kleinteiliger Einfamilienhausbebauung umgeben. Der Schulstandort ist durch einen historischen Baumbestand und großzügige und gut gepflegte Außenanlagen geprägt. Die Bebauung des Standortes ist durch gängige Typenbauten der 60iger und 70iger Jahre geprägt, wobei das Wabengebäude die Freiflächen zweiteilt. Der Zubau wird, in Anlehnung an die Machbarkeitsstudie, so positioniert, dass er zum Bestand eine Raumkante bildet und dabei gleichzeitig viel Fläche auf der zukünftigen Spielwiese frei lässt. Städtebaulich orientiert sich der Neubau an der bestehenden Großform der Sporthalle und fügt sich damit in die Körnigkeit des Standortes gut ein. Die Höhen der Bestandsgebäude dienen als Orientierung für den Neubau, die Räume sind in den üblichen Höhen gem. LP-Bau vorgesehen, lediglich die Lernzone im OG erhält eine Dachlaterne und somit eine, für diesen besonderen Raum, großzügigere Raumhöhe und gute Belichtungsmöglichkeit. Die gewünschten zukünftigen Sportfelder lassen sich gut auf dem südöstlichen Grundstücksteil verorten, so dass eine Fläche für den Hubschrauberlandeplatz frei bleibt. Durch den vorhandenen Baumbestand wird das Gebäude vom Marschweg aus trotzdem wahrnehmbar sein und hier eine neue Adressbildung für den Eingang der Kita ausbilden. Durch die geplante Positionierung der Gebäude und der vorgesehenen Baustelleneinrichtungsfläche müssen nach aktuellem Kenntnisstand keine erhaltenswürdigen Bäume gefällt werden.
Die Bestandsgebäude weisen eine heterogene Gestaltung auf, unterschiedlichste Fassadenmaterialien (Mauerwerk, Waschbeton, Putz) erzeugen kein einheitliches Bild am Standort. Die in direkter Nähe des Neubaus befindlichen Gebäude weisen Putz- und Waschbetonfassaden auf. Der Neubau löst sich von dieser Gestaltung und ist als nachhaltiger Holzbau konzipiert. Für die Außenfassade sollen thermisch behandelte Fassadenhölzer zum Einsatz kommen, die durch diese natürliche Aufwertung besonders dauerhaft sind. Die Fassade wird dabei als Lochfassade ausgebildet, wobei die Betonung der Nachtauskühlungselemente im warmen, freundlichen Farbton der Fester vorgesehen ist. Hierdurch entsteht mit einfachen Mitteln ein belebtes Fassadenbild. Dazu bekommt der Neubau ein Gründach als Retentionsdach mit einer PV-Anlage. Ablesbarer Umweltschutz und die Behaglichkeit eine Holzfassade steigern die Attraktivität des Schulstandortes. Denkbar wäre auch, dass bei einer energetischen Sanierung der Sporthalle, das gleiche Fassadenmaterial zum Einsatz kommt.
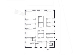
Durch die Zusammenlegung des Schul- und Kitagebäudes entsteht ein kompakter Ersatzbau, der das pädagogische Konzept aus der Phase 0 konsequent umsetzt. Die Flächenvorgaben für die Gesamtsumme werden in der Lösungsskizze komplett eingehalten. Überschreitungen in den einzelnen Nutzungsbereichen entstehen durch Aktivierung von Verkehrsflächen zugunsten der pädagogischen Flächen, insbesondere für die offene Lernfläche. Die Kita befindet sich im Erdgeschoss die Kompartmentbildung wird mit dem Nutzerkonzept nach Festlegung der tatsächlichen Raumbedarfe abgestimmt. Aktuell sieht der Grundriss eine Zonierung in Verwaltung, Krippe und Elementarbereich mit gemeinsamer Spiel- und Garderobenzone in der Mitte vor, aus dem auch der direkte Ausgang in die Freianlagen geplant ist. Durch einen Erschließungsweg entlang der Baumreihe im Osten (gleichzeitig Feuerwehrzufahrt und möglicher Belieferungsweg der Kita) wird der Eingang der Kita über einen kleinen Vorplatz erreicht. Dieser steht mit dem Eingang der Schulnutzung wie gewünscht in Sichtbeziehung. Durch eine Verbindungstür kann die Kita die Schulräume im OG für eine geplante gemeinsamen Nutzung erreichen. Die neuen Fachräume der Schule befinden sich im OG. Durch die unterschiedlichen Geschossgrößen von Schul- und Kitanutzung ergibt sich selbstverständlich eine nutzbare Dachterrasse, die den Fachraumbereich nach außen erweitert. Die Terrasse ist durch eine großzügige Außentreppe in der Sichtachse der ankommenden Schülerinnen und Schüler mit der Außenanlage direkt verbunden und wird somit die Haupterschließung der Schulnutzung des Neubaus darstellen. Die Zonierung der Fachräume entspricht den Wünschen der Phase 0, die Räume orientieren sich um eine großzügige offene Lernlandschaft. Durch Kompartmentbildung kann auf Flure verzichtet werden. Durch großzügige Transparenzen der an die Lernzone angrenzenden Räume entsteht ein offenes und freundliches Fachraumcluster. Das Gebäude wird barrierefrei und inklusiv gestaltet.















Schule und Kita Marschweg
Marschweg 10, Hamburg
Errichtung eines Zubaus mit Zweck Schule und Kita sowie Umbaumaßnahmen im Gebäude Nr. 01 und 03
1. Platz - VgV Verfahren
Fertigstellung
Auftraggebende
Fläche
Leistungen
vsl. 2028
Freie und Hansestadt Hamburg
SBH | Schulbau Hamburg
ca. 1. 580 m² BGF
LPH 1-8
Die Schule Marschweg liegt im Grünen, am nördlichen Rand des Hamburger Stadtteils Rissen. Mit Ausnahme des im Süden an den Schulstandort angrenzenden Hartwig-Hesse-Haus ist die Schule von kleinteiliger Einfamilienhausbebauung umgeben. Der Schulstandort ist durch einen historischen Baumbestand und großzügige und gut gepflegte Außenanlagen geprägt. Die Bebauung des Standortes ist durch gängige Typenbauten der 60iger und 70iger Jahre geprägt, wobei das Wabengebäude die Freiflächen zweiteilt. Der Zubau wird, in Anlehnung an die Machbarkeitsstudie, so positioniert, dass er zum Bestand eine Raumkante bildet und dabei gleichzeitig viel Fläche auf der zukünftigen Spielwiese frei lässt. Städtebaulich orientiert sich der Neubau an der bestehenden Großform der Sporthalle und fügt sich damit in die Körnigkeit des Standortes gut ein. Die Höhen der Bestandsgebäude dienen als Orientierung für den Neubau, die Räume sind in den üblichen Höhen gem. LP-Bau vorgesehen, lediglich die Lernzone im OG erhält eine Dachlaterne und somit eine, für diesen besonderen Raum, großzügigere Raumhöhe und gute Belichtungsmöglichkeit. Die gewünschten zukünftigen Sportfelder lassen sich gut auf dem südöstlichen Grundstücksteil verorten, so dass eine Fläche für den Hubschrauberlandeplatz frei bleibt. Durch den vorhandenen Baumbestand wird das Gebäude vom Marschweg aus trotzdem wahrnehmbar sein und hier eine neue Adressbildung für den Eingang der Kita ausbilden. Durch die geplante Positionierung der Gebäude und der vorgesehenen Baustelleneinrichtungsfläche müssen nach aktuellem Kenntnisstand keine erhaltenswürdigen Bäume gefällt werden.
Die Bestandsgebäude weisen eine heterogene Gestaltung auf, unterschiedlichste Fassadenmaterialien (Mauerwerk, Waschbeton, Putz) erzeugen kein einheitliches Bild am Standort. Die in direkter Nähe des Neubaus befindlichen Gebäude weisen Putz- und Waschbetonfassaden auf. Der Neubau löst sich von dieser Gestaltung und ist als nachhaltiger Holzbau konzipiert. Für die Außenfassade sollen thermisch behandelte Fassadenhölzer zum Einsatz kommen, die durch diese natürliche Aufwertung besonders dauerhaft sind. Die Fassade wird dabei als Lochfassade ausgebildet, wobei die Betonung der Nachtauskühlungselemente im warmen, freundlichen Farbton der Fester vorgesehen ist. Hierdurch entsteht mit einfachen Mitteln ein belebtes Fassadenbild. Dazu bekommt der Neubau ein Gründach als Retentionsdach mit einer PV-Anlage. Ablesbarer Umweltschutz und die Behaglichkeit eine Holzfassade steigern die Attraktivität des Schulstandortes. Denkbar wäre auch, dass bei einer energetischen Sanierung der Sporthalle, das gleiche Fassadenmaterial zum Einsatz kommt.
Durch die Zusammenlegung des Schul- und Kitagebäudes entsteht ein kompakter Ersatzbau, der das pädagogische Konzept aus der Phase 0 konsequent umsetzt. Die Flächenvorgaben für die Gesamtsumme werden in der Lösungsskizze komplett eingehalten. Überschreitungen in den einzelnen Nutzungsbereichen entstehen durch Aktivierung von Verkehrsflächen zugunsten der pädagogischen Flächen, insbesondere für die offene Lernfläche. Die Kita befindet sich im Erdgeschoss die Kompartmentbildung wird mit dem Nutzerkonzept nach Festlegung der tatsächlichen Raumbedarfe abgestimmt. Aktuell sieht der Grundriss eine Zonierung in Verwaltung, Krippe und Elementarbereich mit gemeinsamer Spiel- und Garderobenzone in der Mitte vor, aus dem auch der direkte Ausgang in die Freianlagen geplant ist. Durch einen Erschließungsweg entlang der Baumreihe im Osten (gleichzeitig Feuerwehrzufahrt und möglicher Belieferungsweg der Kita) wird der Eingang der Kita über einen kleinen Vorplatz erreicht. Dieser steht mit dem Eingang der Schulnutzung wie gewünscht in Sichtbeziehung. Durch eine Verbindungstür kann die Kita die Schulräume im OG für eine geplante gemeinsamen Nutzung erreichen. Die neuen Fachräume der Schule befinden sich im OG. Durch die unterschiedlichen Geschossgrößen von Schul- und Kitanutzung ergibt sich selbstverständlich eine nutzbare Dachterrasse, die den Fachraumbereich nach außen erweitert. Die Terrasse ist durch eine großzügige Außentreppe in der Sichtachse der ankommenden Schülerinnen und Schüler mit der Außenanlage direkt verbunden und wird somit die Haupterschließung der Schulnutzung des Neubaus darstellen. Die Zonierung der Fachräume entspricht den Wünschen der Phase 0, die Räume orientieren sich um eine großzügige offene Lernlandschaft. Durch Kompartmentbildung kann auf Flure verzichtet werden. Durch großzügige Transparenzen der an die Lernzone angrenzenden Räume entsteht ein offenes und freundliches Fachraumcluster. Das Gebäude wird barrierefrei und inklusiv gestaltet.














tun-architektur
Jessenstraße 4
22767 Hamburg
040 - 257 67 11 - 0
info@tun-architektur.de
tun-architektur
Jessenstraße 4
22767 Hamburg
040 - 257 67 11 - 0
info@tun-architektur.de
3. Rang Wettbewerb, 2018

Mensa Ernst-Barlach-Gymnasium
Auszeichnungen
1. Rang Wettbewerb, 2022
Stadtteiltreff und Grünzug in Glückstadt Nord
1. Rang Wettbewerb, 2021
Klimaneutrale Sport-Kita Adendorf
BDA Hamburg Architektur Preis (Würdigung), 2020
Caféteria Turmweg
3. Rang Wettbewerb, 2019
Stellingen Sportplatzring
2. Rang Wettbewerb, 2019
Jenfelder Au - Wohnen am Kaskadenpark

3. Rang Wettbewerb, 2018
Mensa Ernst-Barlach-Gymnasium
BDA Hamburg Architektur Preis 2018
Kiwittsmoor-Park
3. Rang Wettbewerb, 2018
Jenfelder Au
1. Rang Wettbewerb, 2018
Einkaufen und Wohnen
am Butterberg
WohnbauPreis Hamburg 2017
Kiwittsmoor-Park
1. Rang Wettbewerb, 2016
Caféteria Turmweg
1. Rang Wettbewerb, 2007
Freischwimmer
tun-architektur ist umgezogen!
Sie finden uns unter der neuen Adresse:
Jessenstraße 4, 22767 Hamburg
Die neuen Räume teilen wir uns als Bürogemeinschaft mit PlanWerk° Architektur & Energieberatung.
