
Schule Meerweinstraße
Meerweinstraße 26-28, Hamburg
Zu- und Erstatzbau Sek I+II
VgV Verfahren mit Lösungsskizze
In Zusammenarbeit mit dem
Architekturbüro PlanWerk°
1. Platz - VgV Verfahren
Fertigstellung
Auftraggebende
Fläche
Leistungen
vsl. 2028
Freie und Hansestadt Hamburg
SBH | Schulbau Hamburg
ca. 4.200m² BGF
LPH 1-8
Die Stadtteilschule Winterhude WI’R (Winterhuder Reformschule) wurde 1928-1930 nach einem Entwurf von Fritz Schumacher erbaut. Der Standort liegt im östlichen Teil der Jarrestadt und wird von der markanten Blockrandbebauung gerahmt.
Charakteristisch für die umliegenden Gebäude, weitestgehend Wohnhäuser, ist eine vier- bis sechsgeschossige Bebauung unter Verwendung von rotem Klinker und einer abgesetzten Erdgeschosszone. Im B-Plan, ebenfalls durch Schumacher geplant, wird deutlich, dass der Sonderbau mit seiner Positionierung und Gebäudeform heraussticht.
Die Bedeutung und übergeordnete Funktion des Schulbaus lässt sich ebenso in der Gebäudehöhe, der Fassadengestaltung (keine Verkleidung der Tragstruktur) und der Akzentuierung durch seitliche Treppentürme ablesen. Bei der weiteren Entwicklung des Standortes wurde darauf geachtet, dass sich die Neubauten zum Stadtteil geschlossen zeigen und in ihrer Ausrichtung die Achsen der umliegenden Straßenzüge aufgreifen.
Mit Ausnahme von Aula und Sporthalle handelt es sich dabei um lange Gebäuderiegel, die sich mit der Fassadengestaltung und Höhe dem Hauptgebäude unterordnen. Auch der Neubau wird diesem Beispiel folgen und eine klare Kante zur Meerweinstraße ausbilden.
Die nordöstliche Gebäudekante wird durch die Flucht der Bebauung am Martin-Haller-Ring und den respektvollen Abstand zum Bestand vorgegeben. Dabei werden die nördliche Baulinie und der Grünstreifen inkl. des erhaltenswerten Baumbestandes als maßgebend angenommen. Zum Schulhof zeigt sich der neue Baukörper offen. Auf eine Anbausituation zum Gebäude 08 soll zum Wohle von Schulhoffläche und Bestand verzichtet werden. Stattdessen wird ein separater Anbau die Flucht des Laubengangs aufnehmen und für die barrierefreie Erschließung sorgen.
Die Höhenstaffelung des Neubaus resultiert aus einer sinnvollen Anordnung der Kompartments im Grundriss, sowie dem Bezug zur gegenüberliegenden Nachbarbebauung. In der Gestaltung der Fassaden orientiert sich die Straßenseite klar zur Jarrestadt, während die Südfassade Elemente des Schulstandortes aufnimmt.
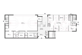
Der Neubau kann über den fußläufigen Zugang südlich vom Schumacher-Bau erschlossen werden. Zudem wird der bereits bestehende Nebenzugang seitens der Meerweinstraße durch eine attraktive Außenraumgestaltung mit zusätzlichen Fahrradstellplätzen gestärkt. Der straßenseitige Eingang führt ins großzügige Foyer und ermöglicht eine direkte Erschließung seitens Meerweinstraße. Gegenüberliegend, auf und im eingeschossigen Gebäudeteil, befinden sich die zwei Hauptzugänge ins Gebäude. Über eine multifunktionale Freitreppe werden die Lernflächen im ersten Obergeschoss erschlossen. Sitzstufen laden zum Ankommen, Verweilen, Austauschen und Lernen (grünes Klassenzimmer) ein. Darunter befinden sich eine barrierefreie Eingangszone und die Nebenräume der Sporthalle. Die dazugehörigen Fenster sind mit einem offenen Relief-Mauerwerk verkleidet. Beide Eingänge im Erdgeschoss liegen etwas zurückversetzt. Sie bieten damit Schutz vor Witterung und erfahren eine Betonung innerhalb der Fassade.
Das denkmalgeschützte Bestandsgebäude soll als zentrales und charakterbestimmendes Herz der Schule gestärkt werden. Der Neubau fügt sich durch die klare Kubatur, den weiträumigen Abstand und die niedrigere Gebäudehöhe in das Ensemble ein, ohne mit dem Bestand in Konkurrenz zu treten. Außerdem wird der räumliche Bezug zur umliegenden Bebauung aufgegriffen und die notwendige Freifläche für Pausengestaltung und Bewegung realisiert. Die Höhenstaffelung von einer eingeschossigen Erschließungszone zum Schulhof, über eine viergeschossige Flanke zum Hauptgebäude, bis zu dem fünfgeschossigen Rücken zur Straße, nimmt Bezug auf die jeweils gegenüberliegenden Bauten und vermittelt zwischen Schule und Nachbarschaft. Die maximale Gebäudehöhe liegt deutlich unterhalb der Traufkante des Bestandes. Das begehbare Dach an der Freitreppe dient als Erweiterung des Schulhofes und bietet neben Einblicken in die Sporthalle auch Raum für Rückzugsorte und ein grünes Klassenzimmer.
Der Standort WI’R ist seit den 1950er Jahren deutlich gewachsen und die Fassaden der Zubauten wurden weitestgehend nach den Gestaltungsmerkmalen der Jarrestadt konzipiert. Das neue Schulgebäude greift mit dunkelrotem Klinker, liegenden Fensterbändern, weißen Sprossenfenstern und der Betonung der Eingänge, durch vertikale akzentuierende Treppenhausfassaden, viele der Charakteristiken auf. Die Staffelung der Gebäudehöhe, die kleinen Rundfenster im Treppenhaus und das Hervorheben der Sporthalle durch größere Fensterformate sorgen, vergleichbar mit den Akzentuierungen beim Hauptgebäude, für eine dezente Belebung der Fassade. Auch das Absetzen der Erdgeschosszone durch ein horizontales Klinkerrelief macht die Identität als Teil der Jarrestadt deutlich. Die Gebäudehülle besteht aus einem zweischaligen Mauerwerk inklusive Flachdach mit Attika. Mögliche Lüftungsanlagen sollen wie bereits in anderen Projekten realisiert im Gebäude, im Bereich von Abhangdecken im EG, montiert werden. Die Gründächer inkl. PV-Anlage und kleiner Forscher-Terrasse sind durch die Attika für den Stadtraum nicht wahrnehmbar.













Schule Meerweinstraße
Meerweinstraße 26-28, Hamburg
Zu- und Erstatzbau Sek I+II
VgV Verfahren mit Lösungsskizze
In Zusammenarbeit mit dem
Architekturbüro PlanWerk°
1. Platz - VgV Verfahren
Fertigstellung
Auftraggebende
Fläche
Leistungen
vsl. 2028
Freie und Hansestadt Hamburg
SBH | Schulbau Hamburg
ca. 4.200m² BGF
LPH 1-8
Die Stadtteilschule Winterhude WI’R (Winterhuder Reformschule) wurde 1928-1930 nach einem Entwurf von Fritz Schumacher erbaut. Der Standort liegt im östlichen Teil der Jarrestadt und wird von der markanten Blockrandbebauung gerahmt. Charakteristisch für die umliegenden Gebäude, weitestgehend Wohnhäuser, ist eine vier- bis sechsgeschossige Bebauung unter Verwendung von rotem Klinker und einer abgesetzten Erdgeschosszone. Im B-Plan, ebenfalls durch Schumacher geplant, wird deutlich, dass der Sonderbau mit seiner Positionierung und Gebäudeform heraussticht. Die Bedeutung und übergeordnete Funktion des Schulbaus lässt sich ebenso in der Gebäudehöhe, der Fassadengestaltung (keine Verkleidung der Tragstruktur) und der Akzentuierung durch seitliche Treppentürme ablesen. Bei der weiteren Entwicklung des Standortes wurde darauf geachtet, dass sich die Neubauten zum Stadtteil geschlossen zeigen und in ihrer Ausrichtung die Achsen der umliegenden Straßenzüge aufgreifen. Mit Ausnahme von Aula und Sporthalle handelt es sich dabei um lange Gebäuderiegel, die sich mit der Fassadengestaltung und Höhe dem Hauptgebäude unterordnen. Auch der Neubau wird diesem Beispiel folgen und eine klare Kante zur Meerweinstraße ausbilden. Die nordöstliche Gebäudekante wird durch die Flucht der Bebauung am Martin-Haller-Ring und den respektvollen Abstand zum Bestand vorgegeben. Dabei werden die nördliche Baulinie und der Grünstreifen inkl. des erhaltenswerten Baumbestandes als maßgebend angenommen. Zum Schulhof zeigt sich der neue Baukörper offen. Auf eine Anbausituation zum Gebäude 08 soll zum Wohle von Schulhoffläche und Bestand verzichtet werden. Stattdessen wird ein separater Anbau die Flucht des Laubengangs aufnehmen und für die barrierefreie Erschließung sorgen.
Die Höhenstaffelung des Neubaus resultiert aus einer sinnvollen Anordnung der Kompartments im Grundriss, sowie dem Bezug zur gegenüberliegenden Nachbarbebauung. In der Gestaltung der Fassaden orientiert sich die Straßenseite klar zur Jarrestadt, während die Südfassade Elemente des Schulstandortes aufnimmt.
Der Neubau kann über den fußläufigen Zugang südlich vom Schumacher-Bau erschlossen werden. Zudem wird der bereits bestehende Nebenzugang seitens der Meerweinstraße durch eine attraktive Außenraumgestaltung mit zusätzlichen Fahrradstellplätzen gestärkt. Der straßenseitige Eingang führt ins großzügige Foyer und ermöglicht eine direkte Erschließung seitens Meerweinstraße. Gegenüberliegend, auf und im eingeschossigen Gebäudeteil, befinden sich die zwei Hauptzugänge ins Gebäude. Über eine multifunktionale Freitreppe werden die Lernflächen im ersten Obergeschoss erschlossen. Sitzstufen laden zum Ankommen, Verweilen, Austauschen und Lernen (grünes Klassenzimmer) ein. Darunter befinden sich eine barrierefreie Eingangszone und die Nebenräume der Sporthalle. Die dazugehörigen Fenster sind mit einem offenen Relief-Mauerwerk verkleidet. Beide Eingänge im Erdgeschoss liegen etwas zurückversetzt. Sie bieten damit Schutz vor Witterung und erfahren eine Betonung innerhalb der Fassade.
Das denkmalgeschützte Bestandsgebäude soll als zentrales und charakterbestimmendes Herz der Schule gestärkt werden. Der Neubau fügt sich durch die klare Kubatur, den weiträumigen Abstand und die niedrigere Gebäudehöhe in das Ensemble ein, ohne mit dem Bestand in Konkurrenz zu treten. Außerdem wird der räumliche Bezug zur umliegenden Bebauung aufgegriffen und die notwendige Freifläche für Pausengestaltung und Bewegung realisiert. Die Höhenstaffelung von einer eingeschossigen Erschließungszone zum Schulhof, über eine viergeschossige Flanke zum Hauptgebäude, bis zu dem fünfgeschossigen Rücken zur Straße, nimmt Bezug auf die jeweils gegenüberliegenden Bauten und vermittelt zwischen Schule und Nachbarschaft. Die maximale Gebäudehöhe liegt deutlich unterhalb der Traufkante des Bestandes. Das begehbare Dach an der Freitreppe dient als Erweiterung des Schulhofes und bietet neben Einblicken in die Sporthalle auch Raum für Rückzugsorte und ein grünes Klassenzimmer.
Der Standort WI’R ist seit den 1950er Jahren deutlich gewachsen und die Fassaden der Zubauten wurden weitestgehend nach den Gestaltungsmerkmalen der Jarrestadt konzipiert. Das neue Schulgebäude greift mit dunkelrotem Klinker, liegenden Fensterbändern, weißen Sprossenfenstern und der Betonung der Eingänge, durch vertikale akzentuierende Treppenhausfassaden, viele der Charakteristiken auf. Die Staffelung der Gebäudehöhe, die kleinen Rundfenster im Treppenhaus und das Hervorheben der Sporthalle durch größere Fensterformate sorgen, vergleichbar mit den Akzentuierungen beim Hauptgebäude, für eine dezente Belebung der Fassade. Auch das Absetzen der Erdgeschosszone durch ein horizontales Klinkerrelief macht die Identität als Teil der Jarrestadt deutlich. Die Gebäudehülle besteht aus einem zweischaligen Mauerwerk inklusive Flachdach mit Attika. Mögliche Lüftungsanlagen sollen wie bereits in anderen Projekten realisiert im Gebäude, im Bereich von Abhangdecken im EG, montiert werden. Die Gründächer inkl. PV-Anlage und kleiner Forscher-Terrasse sind durch die Attika für den Stadtraum nicht wahrnehmbar.












tun-architektur
Jessenstraße 4
22767 Hamburg
040 - 257 67 11 - 0
info@tun-architektur.de
tun-architektur
Jessenstraße 4
22767 Hamburg
040 - 257 67 11 - 0
info@tun-architektur.de
3. Rang Wettbewerb, 2018

Mensa Ernst-Barlach-Gymnasium
Auszeichnungen
1. Rang Wettbewerb, 2022
Stadtteiltreff und Grünzug in Glückstadt Nord
1. Rang Wettbewerb, 2021
Klimaneutrale Sport-Kita Adendorf
BDA Hamburg Architektur Preis (Würdigung), 2020
Caféteria Turmweg
3. Rang Wettbewerb, 2019
Stellingen Sportplatzring
2. Rang Wettbewerb, 2019
Jenfelder Au - Wohnen am Kaskadenpark

3. Rang Wettbewerb, 2018
Mensa Ernst-Barlach-Gymnasium
BDA Hamburg Architektur Preis 2018
Kiwittsmoor-Park
3. Rang Wettbewerb, 2018
Jenfelder Au
1. Rang Wettbewerb, 2018
Einkaufen und Wohnen
am Butterberg
WohnbauPreis Hamburg 2017
Kiwittsmoor-Park
1. Rang Wettbewerb, 2016
Caféteria Turmweg
1. Rang Wettbewerb, 2007
Freischwimmer
tun-architektur ist umgezogen!
Sie finden uns unter der neuen Adresse:
Jessenstraße 4, 22767 Hamburg
Die neuen Räume teilen wir uns als Bürogemeinschaft mit PlanWerk° Architektur & Energieberatung.
