
Fritz-Schumacher-Schule
Foorthkamp 36, Hamburg
Umbau und Sanierung des Eingangszentrums
Fertigstellung
Auftraggebende
Fläche
Leistungen
Kosten
Fotos
2017
Freie und Hansestadt Hamburg
SBH | Schulbau Hamburg
ca. 1.200 m² NRF
LPH 2-8
1,4 Mio. Euro
archimage, Meike Hansen
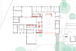
Die Bauweise und der bauliche Zustand erforderten eine Sanierung der Innenräume sowie der Fassade des Eingangszentrums, einem Gebäude aus den 50iger Jahren.
Im Rahmen der GBS (Ganztägige Bildung und Betreuung an Schulen) Aufwärmküche neu errichtet. Die Esseneinnahme wurde in der Pausenhalle realisiert. Hierfür waren umfangreiche Umbaumaßnahmen erforderlich.
Fenster und Außentüren wurden nach Erfordernis erneuert. Die neu ein-gebauten Elemente entsprechen den heutigen energetischen Vorgaben.








Fritz-Schumacher-Schule
Foorthkamp 36, Hamburg
Umbau und Sanierung des Eingangszentrums
Fertigstellung
Auftraggebende
Fläche
Leistungen
Kosten
Fotos
2017
Freie und Hansestadt Hamburg
SBH | Schulbau Hamburg
ca. 1.200 m² NRF
LPH 2-8
1,4 Mio. Euro
archimage, Meike Hansen
Die Bauweise und der bauliche Zustand erforderten eine Sanierung der Innenräume sowie der Fassade des Eingangszentrums, einem Gebäude aus den 50iger Jahren.
Im Rahmen der GBS (Ganztägige Bildung und Betreuung an Schulen) Aufwärmküche neu errichtet. Die Esseneinnahme wurde in der Pausenhalle realisiert. Hierfür waren umfangreiche Umbaumaßnahmen erforderlich.
Fenster und Außentüren wurden nach Erfordernis erneuert. Die neu ein-gebauten Elemente entsprechen den heutigen energetischen Vorgaben.







tun-architektur
Jessenstraße 4
22767 Hamburg
040 - 257 67 11 - 0
info@tun-architektur.de
tun-architektur
Jessenstraße 4
22767 Hamburg
040 - 257 67 11 - 0
info@tun-architektur.de
3. Rang Wettbewerb, 2018

Mensa Ernst-Barlach-Gymnasium
Auszeichnungen
1. Rang Wettbewerb, 2022
Stadtteiltreff und Grünzug in Glückstadt Nord
1. Rang Wettbewerb, 2021
Klimaneutrale Sport-Kita Adendorf
BDA Hamburg Architektur Preis (Würdigung), 2020
Caféteria Turmweg
3. Rang Wettbewerb, 2019
Stellingen Sportplatzring
2. Rang Wettbewerb, 2019
Jenfelder Au - Wohnen am Kaskadenpark

3. Rang Wettbewerb, 2018
Mensa Ernst-Barlach-Gymnasium
BDA Hamburg Architektur Preis 2018
Kiwittsmoor-Park
3. Rang Wettbewerb, 2018
Jenfelder Au
1. Rang Wettbewerb, 2018
Einkaufen und Wohnen
am Butterberg
WohnbauPreis Hamburg 2017
Kiwittsmoor-Park
1. Rang Wettbewerb, 2016
Caféteria Turmweg
1. Rang Wettbewerb, 2007
Freischwimmer
tun-architektur ist umgezogen!
Sie finden uns unter der neuen Adresse:
Jessenstraße 4, 22767 Hamburg
Die neuen Räume teilen wir uns als Bürogemeinschaft mit PlanWerk° Architektur & Energieberatung.
