
Sport-Kita Adendorf
Scharnebecker Weg, Adendorf
Neubau einer klimaneutralen Sport-Kita in Adendorf
1. Platz - Realisierungswettbewerb
In Zusammenarbeit mit
LR Architekten - Bauleitung
Siw Matzen - Innenarchitektur+Design
Ando Yoo - Landschaftsarchitektur
Bearbeitung
Auftraggebende
Fläche
Leistungen
Visualisierung
2021
Gemeinde Adendorf
1.392 m² NRF
LPH 2-9
VIZprofistudio, Lviv, Ukraine
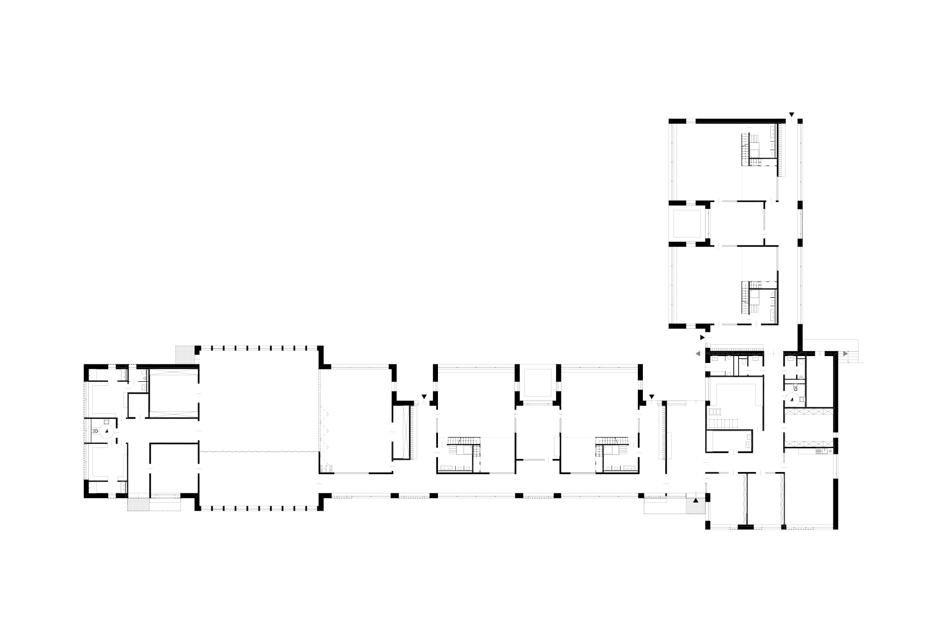
In der Gemeinde Adendorf wurde ein Neubau für eine Sport-Kita inklusive Krippenbereich und extern genutzter Gymnastikhalle (TSV) realisiert.
Neben vier Gruppenräumen wurde ein Multifunktionsraum und ein Verwaltungstrakt inklusive Ausgabeküche geplant. Von den vier Gruppenräumen mit jeweils rund 75m² NRF werden zwei als Krippenräume genutzt, diese grenzen an je einen Schlafraum an. Die beiden anderen Gruppenräume teilen sich in einen Kleingruppen- und einen Werkraum. Die niedrigen Fensterbrüstungen und innenliegenden Festverglasungen zum Flur sorgen für Transparenz und einen starken Bezug zum Außenraum.
Das Leitmotiv für den Neubau kann als „geordnete Kleinteiligkeit“ und „Zusammenhalt“ beschrieben werden. Die „geordnete Kleinteiligkeit“ wird durch die gegliederte Anordnung der größeren Raumeinheiten entlang eines flacheren Baukörpers erreicht. Der „Zusammenhalt“ entsteht über ein einheitliches Fassadenmaterial (Holz). Außerdem wird durch dieses Material der nachhaltige Gedanke des Entwurfes von außen ablesbar. Im Detail entsteht trotz der einheitlichen Holzfassade ein belebtes Bild.
Der vorgegebene Flächenrahmen des Raumprogrammes der Sport-Kita und der Gymnastikhalle wurde vollumfänglich umgesetzt und durch angemessen dimensionierte Verkehrsflächen sowie sonstige NRF ergänzt. Hinsichtlich des Brandschutzes wurden Nutzungseinheiten (max. 300 m²) ausgebildet, damit ein möglichst großer Teil der Erschließungsfläche pädagogisch genutzt werden kann. Die Flure vor den Gruppenräumen sind entsprechend großzügig ausgeführt, damit diese als Spiel-, Aufenthalts- und Begegnungsort für Kinder nutzbar sind. Eine enge Verzahnung von Sportbereich und Kita findet durch den angrenzenden Multi-Raum und den Spiel-Flur statt. Bereits der Spiel-Flur macht Lust auf Bewegung und regt so die Kinder zu sportlichen Aktivitäten an. Festverglasungen zwischen Flur und Gruppenraum schaffen Transparenz und verbessern die Aufsichtsmöglichkeiten und Lichtverhältnisse.
Der Büroraum der Kita-Leitung ordnet sich zentral mit Bezug zum Haupteingang an. Als Ort des Austausches und der Begegnung für Eltern, Kinder und Fachkräfte wird ein großzügiges Foyer ausgebildet, welches mit seinem direkten Durchgang zum Hof auch als Entrée für gemeinsame Kita-Feste dient. Der Eingangsbereich ist überdacht und stufenlos erreichbar. Zentral in der Nähe des Haupteingangs befindet sich ein barrierefreies WC.
In der Ausgabeküche wird das warm gelieferte Essen eines Cateringunternehmens gruppenweise auf- und anschließend verteilt.
Die Gymnastikhalle erhält einen punktelastischen Sportboden mit einem Kraftabbau von mind. 25%. Auf eine umlaufende Prallwand wurde verzichtet. Durch einen mobilen Trennvorhang kann die Halle in zwei Teilbereiche gegliedert werden.
Zur Gymnastikhalle gehören zwei Umkleidebereiche (Damen / Herren) mit je einem WC und je einem Duschplatz. Eine barrierefreie Umkleide neben dem Trainerraum wurde ergänzt. Hier wurden ein stufenloser Duschplatz, eine barrierefreie WC-Anlage und ein rollstuhlgerechter Waschtisch geplant.













Sport-Kita Adendorf
Scharnebecker Weg, Adendorf
Neubau einer klimaneutralen Sport-Kita in Adendorf
1. Platz - Realisierungswettbewerb
In Zusammenarbeit mit
LR Architekten - Bauleitung
Siw Matzen - Innenarchitektur+Design
Ando Yoo - Landschaftsarchitektur
Bearbeitung
Auftraggebende
Fläche
Leistungen
Visualisierung
2021
Gemeinde Adendorf
1.392 m² NRF
LPH 2-9
VIZprofistudio, Lviv, Ukraine
In der Gemeinde Adendorf wurde ein Neubau für eine Sport-Kita inklusive Krippenbereich und extern genutzter Gymnastikhalle (TSV) realisiert.
Neben vier Gruppenräumen wurde ein Multifunktionsraum und ein Verwaltungstrakt inklusive Ausgabeküche geplant. Von den vier Gruppenräumen mit jeweils rund 75m² NRF werden zwei als Krippenräume genutzt, diese grenzen an je einen Schlafraum an. Die beiden anderen Gruppenräume teilen sich in einen Kleingruppen- und einen Werkraum. Die niedrigen Fensterbrüstungen und innenliegenden Festverglasungen zum Flur sorgen für Transparenz und einen starken Bezug zum Außenraum.
Das Leitmotiv für den Neubau kann als „geordnete Kleinteiligkeit“ und „Zusammenhalt“ beschrieben werden. Die „geordnete Kleinteiligkeit“ wird durch die gegliederte Anordnung der größeren Raumeinheiten entlang eines flacheren Baukörpers erreicht. Der „Zusammenhalt“ entsteht über ein einheitliches Fassadenmaterial (Holz). Außerdem wird durch dieses Material der nachhaltige Gedanke des Entwurfes von außen ablesbar. Im Detail entsteht trotz der einheitlichen Holzfassade ein belebtes Bild.
Der vorgegebene Flächenrahmen des Raumprogrammes der Sport-Kita und der Gymnastikhalle wurde vollumfänglich umgesetzt und durch angemessen dimensionierte Verkehrsflächen sowie sonstige NRF ergänzt. Hinsichtlich des Brandschutzes wurden Nutzungseinheiten (max. 300 m²) ausgebildet, damit ein möglichst großer Teil der Erschließungsfläche pädagogisch genutzt werden kann. Die Flure vor den Gruppenräumen sind entsprechend großzügig ausgeführt, damit diese als Spiel-, Aufenthalts- und Begegnungsort für Kinder nutzbar sind. Eine enge Verzahnung von Sportbereich und Kita findet durch den angrenzenden Multi-Raum und den Spiel-Flur statt. Bereits der Spiel-Flur macht Lust auf Bewegung und regt so die Kinder zu sportlichen Aktivitäten an. Festverglasungen zwischen Flur und Gruppenraum schaffen Transparenz und verbessern die Aufsichtsmöglichkeiten und Lichtverhältnisse.
Der Büroraum der Kita-Leitung ordnet sich zentral mit Bezug zum Haupteingang an. Als Ort des Austausches und der Begegnung für Eltern, Kinder und Fachkräfte wird ein großzügiges Foyer ausgebildet, welches mit seinem direkten Durchgang zum Hof auch als Entrée für gemeinsame Kita-Feste dient. Der Eingangsbereich ist überdacht und stufenlos erreichbar. Zentral in der Nähe des Haupteingangs befindet sich ein barrierefreies WC.
In der Ausgabeküche wird das warm gelieferte Essen eines Cateringunternehmens gruppenweise auf- und anschließend verteilt.
Die Gymnastikhalle erhält einen punktelastischen Sportboden mit einem Kraftabbau von mind. 25%. Auf eine umlaufende Prallwand wurde verzichtet. Durch einen mobilen Trennvorhang kann die Halle in zwei Teilbereiche gegliedert werden.
Zur Gymnastikhalle gehören zwei Umkleidebereiche (Damen / Herren) mit je einem WC und je einem Duschplatz. Eine barrierefreie Umkleide neben dem Trainerraum wurde ergänzt. Hier wurden ein stufenloser Duschplatz, eine barrierefreie WC-Anlage und ein rollstuhlgerechter Waschtisch geplant.












tun-architektur
Jessenstraße 4
22767 Hamburg
040 - 257 67 11 - 0
info@tun-architektur.de
tun-architektur
Jessenstraße 4
22767 Hamburg
040 - 257 67 11 - 0
info@tun-architektur.de
3. Rang Wettbewerb, 2018

Mensa Ernst-Barlach-Gymnasium
Auszeichnungen
1. Rang Wettbewerb, 2022
Stadtteiltreff und Grünzug in Glückstadt Nord
1. Rang Wettbewerb, 2021
Klimaneutrale Sport-Kita Adendorf
BDA Hamburg Architektur Preis (Würdigung), 2020
Caféteria Turmweg
3. Rang Wettbewerb, 2019
Stellingen Sportplatzring
2. Rang Wettbewerb, 2019
Jenfelder Au - Wohnen am Kaskadenpark

3. Rang Wettbewerb, 2018
Mensa Ernst-Barlach-Gymnasium
BDA Hamburg Architektur Preis 2018
Kiwittsmoor-Park
3. Rang Wettbewerb, 2018
Jenfelder Au
1. Rang Wettbewerb, 2018
Einkaufen und Wohnen
am Butterberg
WohnbauPreis Hamburg 2017
Kiwittsmoor-Park
1. Rang Wettbewerb, 2016
Caféteria Turmweg
1. Rang Wettbewerb, 2007
Freischwimmer
tun-architektur ist umgezogen!
Sie finden uns unter der neuen Adresse:
Jessenstraße 4, 22767 Hamburg
Die neuen Räume teilen wir uns als Bürogemeinschaft mit PlanWerk° Architektur & Energieberatung.
