
Cafeteria Burgunderweg
Burgunderweg 2, Hamburg
Neubau einer Cafeteria für eine Grundschule
Fertigstellung
Auftraggebende
Fläche
Leistungen
Kosten
Fotos
2014
Freie und Hansestadt Hamburg
SBH | Schulbau Hamburg
300 m² BGF
LPH 2-9
1,0 Mio. Euro
archimage, Meike Hansen
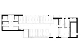
Der Neubau der Cafeteria wird südlich des kleineren Schulhofes zwischen Verwaltung und Sporthalle positioniert.
Die aufgelockerte Pavillonbauweise des Bestandes wird hierbei berücksichtigt, der Grüngürtel der Schule bleibt erhalten. Die Gebäudekubatur, ein eingeschossiger Riegel mit erhöhtem Essensraum, gliedert sich in den Bestand aus rechtwinkligen Flachdachgebäuden ein und verbindet spielerisch die unterschiedlichen Gebäudehöhen der direkt angrenzenden Gebäude. Durch die unterschiedlichen Höhen des repräsentativen Essraumes und der angrenzenden Nebenräume reduziert sich optisch die Gesamtlänge des Gebäudes.
Der Hauptzugang in den Neubau erfolgt in Verlängerung des Laubengangs, der die Schulhöfe miteinander verbindet. Hier wird der Großteil der Schulkinder die Cafeteria erschließen, der Eingang vom Schulhof ist untergeordnet und für z.B. Sommerveranstaltungen im Freien gedacht.
Der Anteil an transparenten Fassaden erzeugt einen freundlich einladenden Innenraum. Der Grundriss ist großzügig und für eine multifunktionale Benutzung offengehalten, ein Teil der Cafeteria kann durch mobile Trennwände unterteilt werden. Der Möblierungsvorschlag ist auf das Essen in 2 Schichten ausgelegt, die Klassen gehen dabei geschlossen als Gruppe zum Mittagessen, 124 Sitzplätze sind vorgesehen. Die Küche ist als Aufwärmküche konzipiert, die Anlieferung des Caterers erfolgt durch einen gesonderten Zugang. Die Zufahrt zur Cafeteria erfolgt getrennt vom Schulhof / Schulkinderbetrieb vom Garstedter Weg.












Cafeteria Burgunderweg
Burgunderweg 2, Hamburg
Neubau einer Cafeteria für eine Grundschule
Fertigstellung
Auftraggebende
Fläche
Leistungen
Kosten
Fotos
2014
Freie und Hansestadt Hamburg
SBH | Schulbau Hamburg
300 m² BGF
LPH 2-9
1,0 Mio. Euro
archimage, Meike Hansen
Der Neubau der Cafeteria wird südlich des kleineren Schulhofes zwischen Verwaltung und Sporthalle positioniert.
Die aufgelockerte Pavillonbauweise des Bestandes wird hierbei berücksichtigt, der Grüngürtel der Schule bleibt erhalten. Die Gebäudekubatur, ein eingeschossiger Riegel mit erhöhtem Essensraum, gliedert sich in den Bestand aus rechtwinkligen Flachdachgebäuden ein und verbindet spielerisch die unterschiedlichen Gebäudehöhen der direkt angrenzenden Gebäude. Durch die unterschiedlichen Höhen des repräsentativen Essraumes und der angrenzenden Nebenräume reduziert sich optisch die Gesamtlänge des Gebäudes.
Der Hauptzugang in den Neubau erfolgt in Verlängerung des Laubengangs, der die Schulhöfe miteinander verbindet. Hier wird der Großteil der Schulkinder die Cafeteria erschließen, der Eingang vom Schulhof ist untergeordnet und für z.B. Sommerveranstaltungen im Freien gedacht.
Der Anteil an transparenten Fassaden erzeugt einen freundlich einladenden Innenraum. Der Grundriss ist großzügig und für eine multifunktionale Benutzung offengehalten, ein Teil der Cafeteria kann durch mobile Trennwände unterteilt werden. Der Möblierungsvorschlag ist auf das Essen in 2 Schichten ausgelegt, die Klassen gehen dabei geschlossen als Gruppe zum Mittagessen, 124 Sitzplätze sind vorgesehen. Die Küche ist als Aufwärmküche konzipiert, die Anlieferung des Caterers erfolgt durch einen gesonderten Zugang. Die Zufahrt zur Cafeteria erfolgt getrennt vom Schulhof / Schulkinderbetrieb vom Garstedter Weg.











tun-architektur
Jessenstraße 4
22767 Hamburg
040 - 257 67 11 - 0
info@tun-architektur.de
tun-architektur
Jessenstraße 4
22767 Hamburg
040 - 257 67 11 - 0
info@tun-architektur.de
3. Rang Wettbewerb, 2018

Mensa Ernst-Barlach-Gymnasium
Auszeichnungen
1. Rang Wettbewerb, 2022
Stadtteiltreff und Grünzug in Glückstadt Nord
1. Rang Wettbewerb, 2021
Klimaneutrale Sport-Kita Adendorf
BDA Hamburg Architektur Preis (Würdigung), 2020
Caféteria Turmweg
3. Rang Wettbewerb, 2019
Stellingen Sportplatzring
2. Rang Wettbewerb, 2019
Jenfelder Au - Wohnen am Kaskadenpark

3. Rang Wettbewerb, 2018
Mensa Ernst-Barlach-Gymnasium
BDA Hamburg Architektur Preis 2018
Kiwittsmoor-Park
3. Rang Wettbewerb, 2018
Jenfelder Au
1. Rang Wettbewerb, 2018
Einkaufen und Wohnen
am Butterberg
WohnbauPreis Hamburg 2017
Kiwittsmoor-Park
1. Rang Wettbewerb, 2016
Caféteria Turmweg
1. Rang Wettbewerb, 2007
Freischwimmer
tun-architektur ist umgezogen!
Sie finden uns unter der neuen Adresse:
Jessenstraße 4, 22767 Hamburg
Die neuen Räume teilen wir uns als Bürogemeinschaft mit PlanWerk° Architektur & Energieberatung.
