
Bildungszentrum „Fruerlund“
Bohlberg 56-58, Flensburg
Neubau Grundschule mit Familienzentrum und Kita
Bearbeitung
Auftraggebende
Fläche
Leistungen
2019
Stadt Flensburg
5.070 m² NRF
offener, zweiphasiger hochbaulicher
Realisierungswettbewerb
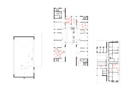
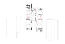
Städtebauliches Konzept
Adressbildung / Wahrnehmung des neuen Bildungszentrums im Quartier
„...nähert man sich dem neuen „Bildungszentrum Fruerlund“, fällt ein Gebäudeensemble zeitgemäßer Architektursprache mit besonderer Kubatur und Materialität auf, welches sich wie selbstverständlich in den historischen Baumbestand integriert.“ Den Schülerinnen und Schülern, den Kita-Kindern, sowie den Lehrenden, Eltern und weiteren Nutzern des „Bildungszentrums Fruerlund“ wird eine besondere bauliche und gestalterische Heimat gegeben. Die öffnende Geste in der Fassade des zentral gelegenen Hauptgebäudes, weist den Weg in das Schulgebäude mit integriertem Familienzentrum und verortet sich somit deutlich wahrnehmbar im angrenzenden Quartier.
Städtebauliche Bezüge / Architektursprache
Die Schule am Bohlberg in Fruerlund wurde größtenteils in den 1950er Jahren als für die Zeit typische Pavillonschule errichtet. Neben der für Flensburg typischen Topografie, ist der alte Baumbestand ein wesentliches Qualitätsmerkmal des Standortes. Mit dem Baumbestand „Altfruerlundhof“ befindet sich auf dem angrenzenden „Stiftungsland“ sogar ein eingetragenes Naturdenkmal. Schon heute hat der Schulstandort einen malerischen Dorfcharakter und wirkt aufgrund der starken Durchgrünung märchenhaft, jedoch verhält sich die Schule zum Quartier eher hermetisch und wirkt in der inneren Struktur unübersichtlich. Dazu erschweren die verstreuten Pavillons die konsequente Umsetzung von individualisiertem Unterricht. Die Herausforderung für den Neubau eines Bildungszentrums ist, die Überführung der derzeitigen Standortqualitäten, bei deutlicher Vergrößerung des Bauvolumens und unter Berücksichtigung der gewünschten funktionalen Bezüge und pädagogischen Zusammenhänge.
Die neuen Gebäude wurden unter Bezugnahme auf die im Stadtteil vorhandene Körnung entwickelt. Das Raumprogramm wurde auf 3 Neubauten verteilt: Hauptgebäude / Schule mit Familienzentrum, Kindergarten und Sporthalle. Die Gebäudevolumen der 3 Neubauten werden durch Satteldächer in Langhäuser gegliedert, deren Maßstäblichkeit sich an den Siedlungshäusern der 1950er Jahre orientiert. Die Position der Gebäudekörper ist unter Rücksichtnahme auf den vorhandenen Baumbestand gewählt und berücksichtigt insbesondere die vorhandenen prägnanten Solitärbäume. Durch Vor-und Rücksprünge der Gebäudeteile / Langhäuser zueinander, wirkt das Bauvolumen insgesamt harmonisch und aufgelockert.
Das Schulgelände fällt, mit kleineren Ausnahmen, insgesamt zum Lautrupsbach / zur Nordstraße deutlich ab. Richtung Norden zum Bohlberg ist das Gelände relativ eben, in der Mitte des als Baugrundstück ausgewiesenen Bereiches (derzeitiger Schulhof) verzeichnet sich ein deutlicher Versprung des Geländes. Im Hauptgebäude wird dieser Geländeversprung in der Halle durch die Freitreppenanlage vermittelt. Die Querachse als Verbinder zwischen den 3 Neubauten befindet sich ca. niveaugleich.
Außenanlagen
Freiflächen / Landschaftsarchitektur
Die lineare Grundrissgeometrie der Langhäuser trifft auf naturnah gestaltete Außenanlagen, die die bereits jetzt vor Ort gefühlte Märchenhaftigkeit erhalten. Die Freiflächen zonieren sich in die drei Nutzungsbereiche: Schule, Sport, Kita. Der Hauptzugang zum Schulgelände erfolgt, wie bereits im Bestand vorhanden, in Verlängerung der Ostlandstraße. Eine separate Zufahrt für PKW ermöglicht eine sichere fußläufige Erschließung. Über den großzügigen Entreeplatz mit vorgelagerten Fahrradstellplätzen erreicht man den zentralen Eingang des Hauptgebäudes des „Bildungszentrums Fruerlund“. Vor dem Haupteingang soll auch die Plastik des Bullen (Schullogo) wieder aufgestellt werden. Zwischen den Gebäuden entstehen zwei Hauptachsen als Erschließungswege der weiteren Nutzungen Kita und Sport über barrierefreie Rampen- und Stufenanlagen. Die östliche Hauptachse dient mit der breiteren Rampe gleichzeitig als Feuerwehrzufahrt. Die Stufung und der Versatz entsprechen dem Gebäudekonzept. Sichtbezüge ins Grüne lenken den Blick zwischen den Gebäuden auf den unteren Schulhof. Die lineare Struktur der Gebäude ist eingebettet in die fließende, natürliche Form der Bestandsgrünflächen, viel Baumbestand bleibt erhalten, terrassierte Übergänge leiten in den grünen Spielbereich. Prägendes Element der Außenanlagen sind die Baumdenkmäler, die im Schulgarten / grünen Klassenzimmer und auf dem zentralen Mensaplatz Kulisse bilden und Atmosphäre vermitteln. Verschiedene Aufenthaltsräume ermöglichen ein breites Spektrum an Aktivitäten, der im Nord-Westen liegende Schulgarten mit grünem Klassenzimmer in der Nähe der Pauseninsel, Bibliothek und Kunst- /Werkraum wird Lernort im Freien. Forschen, Lesen, Gärtnern und naturnahes Spielen sind in diesem Bereich angedacht, während der südliche Spiel- und Sportbereich eher der aktiven Pausen- und Freizeitgestaltung Raum gibt. Ein erhöhter Mensaplatz, mit Blick ins Grüne und über das Geschehen auf dem Schulhof lädt zum Verweilen ein. Auch erleichtern die tieferliegenden Spielbereiche die Pausenaufsicht. Die Freiflächen der Kita sind vom Schulhof durch Einfriedungen getrennt. Im südlichen Bereich zum Landschaftsschutzgebiet und den dort angedachten Spiel- und Sportaktivitäten ist aber ein Übergang möglich, wodurch die Kooperationsmöglichkeiten zwischen Schule und Kita erweitert werden.









Bildungszentrum „Fruerlund“
Bohlberg 56-58, Flensburg
Neubau Grundschule mit Familienzentrum und Kita
Bearbeitung
Auftraggebende
Fläche
Leistungen
2019
Stadt Flensburg
5.070 m² NRF
offener, zweiphasiger hochbaulicher
Realisierungswettbewerb
Städtebauliches Konzept
Adressbildung / Wahrnehmung des neuen Bildungszentrums im Quartier
„...nähert man sich dem neuen „Bildungszentrum Fruerlund“, fällt ein Gebäudeensemble zeitgemäßer Architektursprache mit besonderer Kubatur und Materialität auf, welches sich wie selbstverständlich in den historischen Baumbestand integriert.“ Den Schülerinnen und Schülern, den Kita-Kindern, sowie den Lehrenden, Eltern und weiteren Nutzern des „Bildungszentrums Fruerlund“ wird eine besondere bauliche und gestalterische Heimat gegeben. Die öffnende Geste in der Fassade des zentral gelegenen Hauptgebäudes, weist den Weg in das Schulgebäude mit integriertem Familienzentrum und verortet sich somit deutlich wahrnehmbar im angrenzenden Quartier.








tun-architektur
Jessenstraße 4
22767 Hamburg
040 - 257 67 11 - 0
info@tun-architektur.de
tun-architektur
Jessenstraße 4
22767 Hamburg
040 - 257 67 11 - 0
info@tun-architektur.de
3. Rang Wettbewerb, 2018

Mensa Ernst-Barlach-Gymnasium
Auszeichnungen
1. Rang Wettbewerb, 2022
Stadtteiltreff und Grünzug in Glückstadt Nord
1. Rang Wettbewerb, 2021
Klimaneutrale Sport-Kita Adendorf
BDA Hamburg Architektur Preis (Würdigung), 2020
Caféteria Turmweg
3. Rang Wettbewerb, 2019
Stellingen Sportplatzring
2. Rang Wettbewerb, 2019
Jenfelder Au - Wohnen am Kaskadenpark

3. Rang Wettbewerb, 2018
Mensa Ernst-Barlach-Gymnasium
BDA Hamburg Architektur Preis 2018
Kiwittsmoor-Park
3. Rang Wettbewerb, 2018
Jenfelder Au
1. Rang Wettbewerb, 2018
Einkaufen und Wohnen
am Butterberg
WohnbauPreis Hamburg 2017
Kiwittsmoor-Park
1. Rang Wettbewerb, 2016
Caféteria Turmweg
1. Rang Wettbewerb, 2007
Freischwimmer
tun-architektur ist umgezogen!
Sie finden uns unter der neuen Adresse:
Jessenstraße 4, 22767 Hamburg
Die neuen Räume teilen wir uns als Bürogemeinschaft mit PlanWerk° Architektur & Energieberatung.
